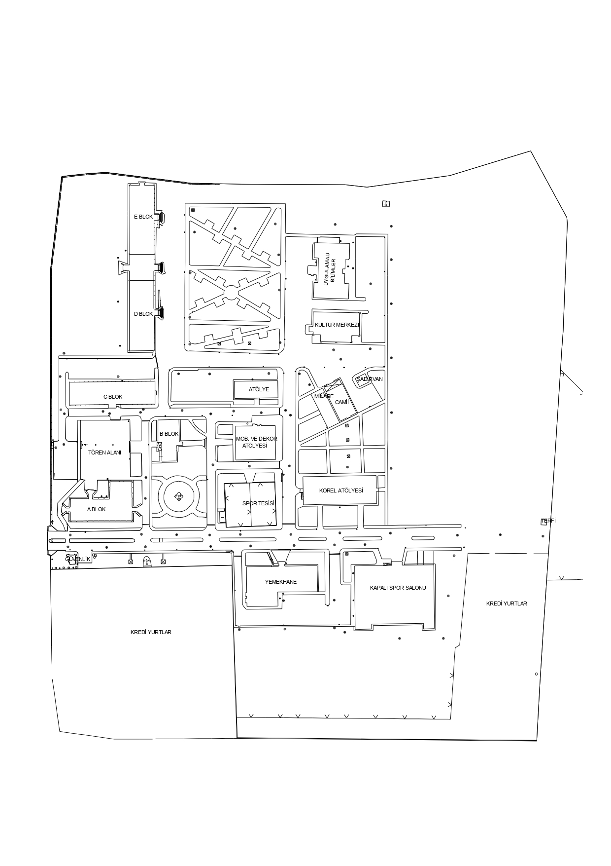
Eğitim 1 Binası, Eğitim 2 Binası, Eğitim 2A Binası, Eğitim 3 Binası, Uygulamalı Bilimler Yüksekokulu, İdari Bina, Kantin, Yemekhane, Kapalı Spor Salonu, Kongre Merkezi, Derslik Binası, Kapalı Spor Salonu, Cami ve Atölyeler bulunmaktadır.
Bolvadin Kırkgöz Yerleşkesi toplam 18.900,10 m2. kapalı ve 330.284,24 m2 açık alana sahiptir.
03 Mart 2025, Pazartesi 419 kez görüntülendi


